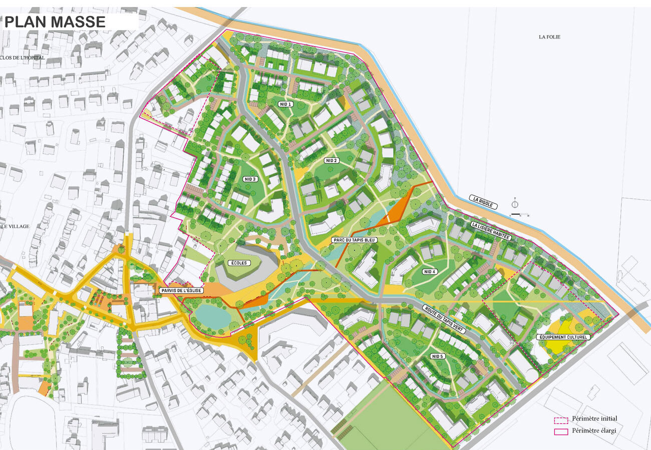
La trame paysagère s’appuie sur une structure paysagère élaborée en préalable, autour des narratifs de « cocon connecté » et de « machine hydraulique » :

  • Les formes sont organiques et suivent les courbes de niveau existantes. Le quartier s’organise de part et d’autre d’un grand parc, le parc du Tapis bleu.
  • Une seule voie traverse le quartier, c’est la route du Tapis vert.
  • Les rues secondaires, de forme arrondie, à sens unique et partagées, distribuent des micro-quartiers, eux-mêmes organisés autour d’espaces communs, les nids, qui ont pour vocation de récupérer les eaux de pluie et d’accueillir des usages récréatifs.
  • L’ensemble des rues sont accompagnées de noues pour les eaux pluviales.
  • Le bâti suit les formes souples du paysage et les gabarits répondent à un souci d’intégration au tissu urbain existant.
  • La teneur symbolique de l’entrée du quartier est importante avec la résurgence d’une mare historique.
  • Caractéristiques

    Maitrise d’ouvrage : Eiffage aménagement, Marginal
    Localisation : Saclay (91)
    Superficie : 13 Ha, 700 logements
    Calendrier : 2022
    Coût de l’opération : 9 M€ HT (espaces publics)
    Rôle de l’agence : mandataire (urbanisme, paysage et territoire)
    Partenaires : A26 architectes, SETU Bet VRD, Infraservices
    Partenaires du maitre d’ouvrage : Ville de Saclay, Paris- Saclay
    Développement durable : urbanisme par le paysage, récupération des EP à ciel ouvert, minimisation des sols imperméables, augmentation de la biodiversité, mise en place d’une pépinière d’arbre in situ, concertation maximale, co-conception avec les élu·es